Обяви За нас Контакти
Продава ОФИС
град Пловдив, Кършияка
175 000 €
342 270.25 лв.

(2 134 €, 4 173.74 лв./m2)
Не се начислява ДДС
Коригирана в 19:25 на 15 февруари, 2026 год.
Обявата е посетена 115 пъти.
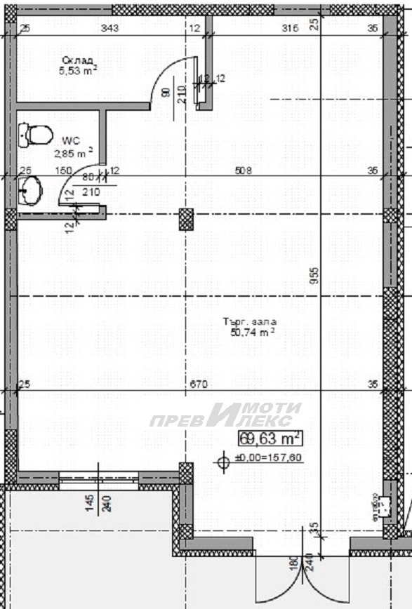
Площ:
82 m2
Строителство:
Тухла, Въведен в експлоатация 2020 г.

Описание на имота:


Оферта 1-4656, Нова по-ниска цена, в която е включено ДДС. Получавате данъчна фактура. Предлагаме Ви просторно и светло помещение подходящо за офис, магазин, кантора, лекарски или стоматологичен кабинет. Намира се в малък комплекс с жилищна част и обществено-обслужваща дейност: 'Олимпия Резидънс'. Луксозни общи части на сграда. Комуникативна локация: има човеко-поток, обществен транспорт и главен булевард, в непосредствена близост до Международен панаир Пловдив / северния вход/. Квартала е с много добра инфраструктура, наличие на търговска зона на пешеходно разстояние, а също така заведения за хранене и напитки, и продължава да се развива и обновява. Двете витрини на офиса дават видимост и светлина на офиса. В помещението има обособени собствен санитарен възел, с мивка и отделно складово помещение. Степен на завършване: окачени тавани, стени - гипсо-картон, боядисани в бяло; под-гранитогрес, алуминиева дограма с двоен стъкло-пакет (бяло,нискоемисийно стъкло); вътрешни алуминиеви врати към склада и санитарния възел; монтирани LED осветителни тела, ключове, контакти, интернет розетка, ВиК -в санитарния възел - шкаф, огледало, мивка със смесител, моноблок и вентилатор. За отопление и охлаждане е поставен климатик. Много подходящ избор за инвестиция / може да закупите с наемателите, които го стопанисват в момента/ или нов обект за Вашия бизнес. Гарантираме, че ще получите необходимото внимание и компетентно съдействие. Ние ще Ви предложим професионално отношение и чрез индивидуален подход ще се стремим да бъдем максимално полезни в търсене на най-доброто решение за Вас. Работим с голям кръг от инвеститори, строители и колеги и се стремим да покрием с максимално изчерпателна информация и оферти зададените от Вас критерии. Съдействаме за получаване на ипотечен кредит за имота, който сте избрали, при най-добри условия за купувача. За повече подробности, проект или оглед сме на разположение на посочения телефон.
Особености
Тухла
Асансьор
Интернет връзка
За контакт:
0887900445
Агенция:
ПРЕВИЛЕКС ИМОТИ
0887900445
ПРЕВИЛЕКС ИМОТИ logo
Медал за прослужено време
В imot.bg от 2012 г.
previlex.imot.bg
Адрес:
област Пловдив, гр. Пловдив, Пловдив бул Христо Ботев 82
ИЗПРАТИ ЗАПИТВАНЕ
ИЗПРАТИ ЗАПИТВАНЕТО

Продава ОФИС
град Пловдив, Кършияка
Обява: 1g171898108856686

175 000 €
342 270.25 лв.
(2 134 €, 4 173.74 лв./m2)

Не се начислява ДДС
ЗАПАЗИ ОБЯВАТА

Местоположение: град Пловдив, Кършияка

Допълнителни данни за имотите в района и сравнение с други райони

Покажи

Период

и 2 месеца

* Средните цени са определени чрез медианна стойност